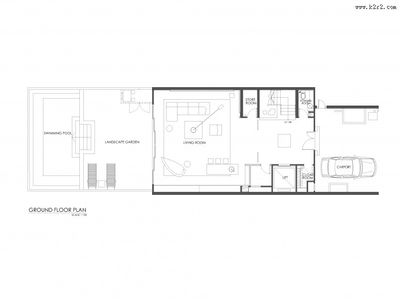
首页 > 装饰装修 > Durham(12张) > Durham 第3张

Durham - 第3张

第 3 / 12 张
一夕一夏上传Durham 图集中 / 共有 12 张图片
最近更新: 初中辛亥革命手抄报第一名画法,辛亥革命手抄报内容写什么 10张红色教育手抄报 春的脚步手抄报内容 15张春天手抄报 11月9日全国消防日手抄报图片 15张消防日手抄报 小学生学党史手抄报图片大全,党史手抄报简单又漂亮模板素材 11张爱国手抄报 数学手抄报_数学知识大比拼 16张数学手抄报 关爱自我远离邪教手抄报图片 12张科学科技手抄报 学习社会主义价值观手抄报资料 10张小学生手抄报 可爱又好看的情侣头像 可爱又好看的情侣头像图片大全 20张 赤木晴子情侣头像|赤木晴子和樱木花道的情侣头像 16张 黑色个性头像女生霸气 女生头像黑色的图片霸气 20张