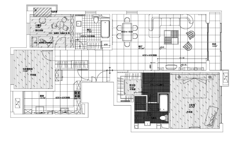
首页 > 装饰装修 > 北京观澜国际花园样板间设计图片(6张) > 北京观澜国际花园样板间设计图片 第4张

北京观澜国际花园样板间设计图片 - 第4张

第 4 / 6 张
猫扑风铃上传北京观澜国际花园样板间设计图片 图集中 / 共有 6 张图片
最近更新: 橘黄的萱草花图片 红色的朝霞风景图片 城市地铁图片 古典海报设计图片 绿色大伞一样的大榕树图片 可爱灰色小猫图片 黑框眼镜图片图片 中钢别墅室内设计案例图片 唯美路灯图片 玫瑰花上的露珠图片